2025 AI Readiness Report: Survey Insights on Enterprise AI Maturity – Now Available!
By Matt Parizeau | 2020 Mar 31

We are excited to announce version 6.2 of WebViewer, our pure client-side JavaScript and WebAssembly-powered PDF SDK. This release introduces a new file attachment annotation, allowing your users to embed any kind of file inside a document. Also included are new PDF measurement tools for rectangles or circles, as well as a more intuitive way to create polygons (including cloud polygons).
Check out all of the changes here.
Your users will now be able to view, add and download file attachments inside documents. They can either double click to download the file or press the download button from the annotation selection menu.

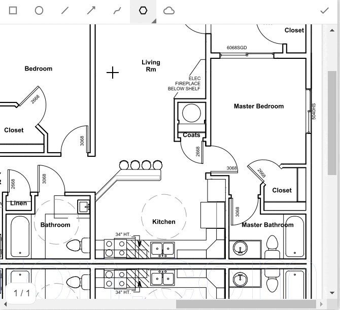
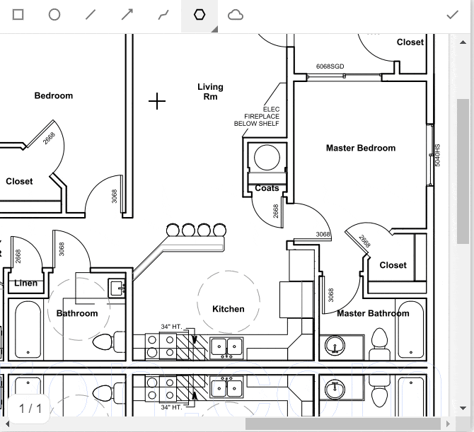
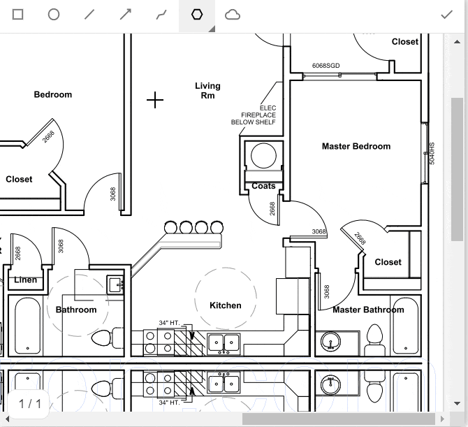
In addition to our line, polyline and polygon PDF measurement tools, WebViewer now supports measuring the area of rectangles or circles. These tools make it much more convenient for your users to measure the area of rectangular and circular regions in their CAD-based drawings.

Previously the way that you would complete the creation of a polygon annotation was to double click or double tap for the last point. This is still supported, but now after adding the third point there will be a box that appears around the first point and the user can click anywhere in the box to complete the creation of the polygon.

For all the changes see the WebViewer 6.2 changelog.
We hope you like these changes and any feedback is greatly appreciated. Please don't hesitate to contact us if you have any questions or suggestions.
We also have many exciting new features planned for the coming weeks and months. Stay tuned…

Matt Parizeau
Share this post
PRODUCTS
Platform Integrations
End User Applications
Popular Content